新着
井原市芳井町吉井 中古住宅 250万円








物件情報
-
物件種別一戸建
-
所在地井原市芳井町
-
価格250万円
-
利回り-
-
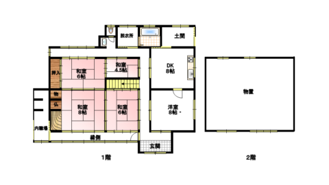
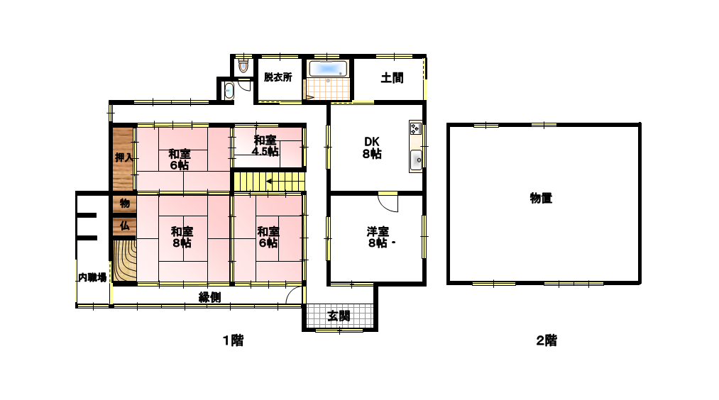
間取り5DK+倉庫
-
建物面積
延べ:192.85㎡
1階:139.93㎡
2階:52.92㎡ -
容積率-
-
駐車場4~5台可能
-
礼金-
-
更新料-
-
建物構造木造
-
現況上物有
-
都市計画
都市計画外
-
地目
宅地、田
-
特記事項-
-
情報更新日2025年09月19日
-
沿線・駅・交通-
-
築年月昭和46年
-
土地面積
公簿 1667.14㎡(504.30坪)
-
建ぺい率-
-
間取り内訳-
-
敷金-
-
管理費-
-
引渡し即
-
階建・階2階建
-
設備
電気・水道・汲み取り・プロパン
-
用途地域-
-
取引態様
媒介
-
備考1-
-
備考2-









