新着
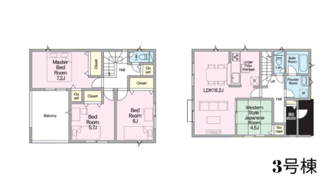
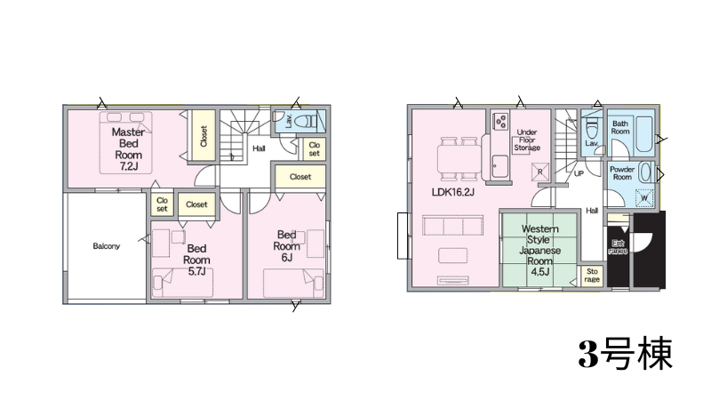
七日市町 新築分譲住宅 3号棟
\\ファミリー不動産限定新生活応援キャンペーン実施中//
ファミリー不動産で購入の方に商品券10万円分プレゼントします!!
プライベート感を大切にした落ち着きのある3号棟。
家族それぞれの時間も心地よく過ごせる、バランスの取れた住空間が魅力です。
井原市七日市町に誕生した、暮らしやすさを大切にした新築分譲住宅。
周辺は落ち着いた住宅街で、日々の生活に安心感と穏やかさをもたらします。
通勤・通学やお買い物にも便利な立地で、子育て世帯からご夫婦世帯まで幅広くおすすめできる住環境です。
住まいは、家族の時間を大切にできる間取り設計を採用。
リビングを中心に自然と家族が集まり、会話が生まれる空間構成となっています。
収納スペースも各所に配置し、日常の片付けやすさにも配慮。家事動線を考えた設計で、忙しい毎日をしっかりサポートします。
新築ならではの快適性と安心感を備えた一邸で、これからの暮らしをスタートしてみませんか。




物件情報
-
物件種別一戸建
-
所在地井原市七日市町
-
価格2,380万円
-
利回り-
-
間取り4LDK
-
建物面積
延べ:105.29㎡
1階:51.43㎡
2階:53.86㎡ -
容積率200%
-
駐車場-
-
礼金-
-
更新料-
-
建物構造木造
-
現況建設中
-
都市計画
非線引き
-
地目
宅地
-
特記事項-
-
情報更新日2026年01月25日
-
沿線・駅・交通
井原鉄道 井原 徒歩6分
-
築年月2026年04月末予定
-
土地面積
149.59㎡
-
建ぺい率60%
-
間取り内訳和 4.5 洋 5.7・6・7.2 LDK 16.2
-
敷金-
-
管理費-
-
引渡し相談
-
階建・階2階建
-
設備
浴室乾燥機 浴室に窓あり トイレ2ヶ所 温水洗浄便座 シャワー付洗面化粧台 カウンターキッチン システムキッチン クローゼット ウォークインクローゼット シューズIC 人感センサー付照明 複層ガラス 電気 上水道 下水道 CATV モニタ付インターホン 防犯カメラ 駐車場2台分
-
用途地域
1種住居
-
取引態様
媒介
-
備考1-
-
備考2-





